车载充电机在产品开发时的试验验证阶段,未有专门针对凝露问题的试验,车载充电机内部信号端子的管脚焊点处会产生凝露(如下图所示)。
由于此处在设计开发阶段未考虑到凝露影响,未进行防护处理,实际使用中由于凝露导致相邻焊脚处发生阻抗变化,造成功能失效。下面,我们使用高低温冷凝水试验机,来完成对充电机的凝露试验测试。
试验设备:环仪仪器 高低温冷凝水试验机
试验标准:
GB/T 2423.34-2012
ISO 16750-4:2010
试验内容:
根据相关标准的要求,试验样品需要完成温湿度循环试验,再进行进行凝露试验。
1.温度/湿度组合试验
温度/湿度组合试验是一项加速气候试验,通过在高湿的情况下改变温度条件,在试验样品的壳体内外造成温度变化和温度差,测试试验样品在“呼吸”作用下导致的缺陷。
按照标准GB/T 2423.34-2012的要求进行,试验由10个子循环构成,每个24 h。其中前9次循环中的5个循环适用于有低温暴露过程的温湿度循环,其余的 4 次循环适用于无低温暴露过程的温湿度循环。在子循环过程中,当最大循环温度达到时,试验样品应带电运行,同时要求控制在典型模式下进行功能测试。在试验中和试验之后,试验样品的全部功能都要满足设计要求。
2.凝露试验
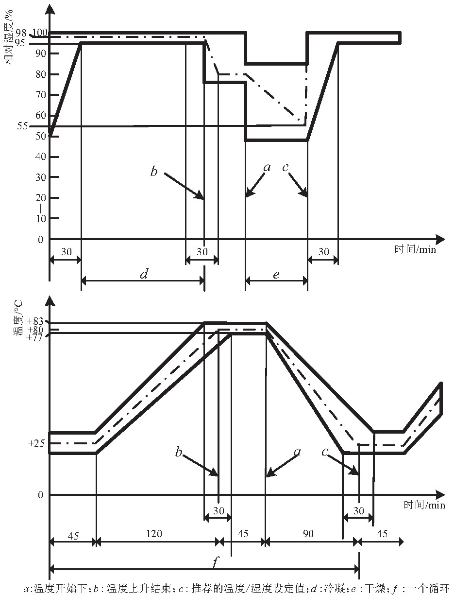
凝露试验按照标准 ISO 16750-4:2010中5.6.2.4的要求进行,试验要求进一步严苛,主要考核试验样品在凝露-工作负荷下的适应性。定义温度和湿度曲线近似车辆环境实际运行产生凝露的效果。
凝露试验循环如下图所示,进行 5 个试验循环。在试验中,试验样品应按ISO 16750-1:2012规定的工作模式2.1工作。试验结束后,试验样品功能状态应符合ISO 16750-1定义的B级。
凝露试验的意义:
汽车电子产品内部产生凝露现象时,可能导致电路板受潮、变形断路、积水漏电等,引起绝缘强度下降、内部信号短路,造成显性或隐性的电路故障。在产品验证试验阶段,需综合考虑产品的工作条件,严格进行配合凝露的相关试验,验证环境适应性。
如有汽车电子的凝露试验疑问,可以咨询环仪仪器相关技术人员。











